top of page
AWS
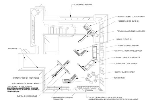
This showroom is an example of customization to our standard display system. This design was requested to better encompass the clients philosophy. The basic concept of the standard program was used with upgrades to materials and finishes. Additional products sold by the dealer, such as siding and trims, were incorporated into our displays to show a complete inspirational package.
bottom of page






